BOSS Two Bed Basic

BOSS Two Bed Basic

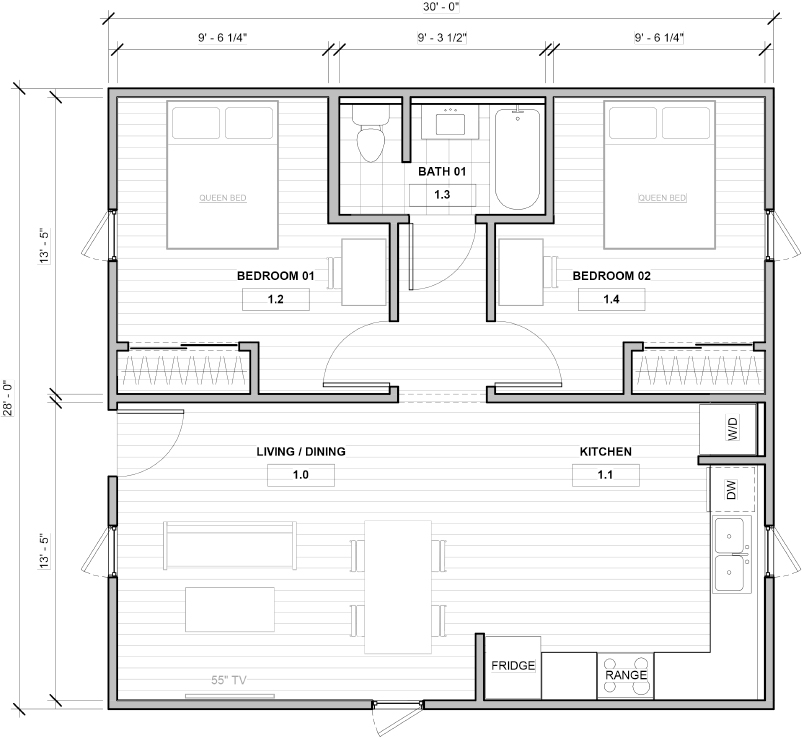
Two cozy bedrooms in an efficient design, ideal for small families or shared living.

  • 28' x 30'
  • 800 sqft
  • 1 Bathroom
  • $146,995 plus installation

Gallery

Roof Styles

  • Pent Roof
  • Lean-To Roof
  • Classic Roof
  • Gable Roof

Tech Specs

SQUARE FOOTAGE

800 total sqft

UNIT DIMENSIONS

Unit Footprint: 28′ x 30′
Unit Height: 11′- 6″

EXTERIOR

Structure
  • Precision-engineered light-gauge steel framing.
Roof
  • Painted Galvinized Steel: Corrugated or standing seam profile.
Doors & Windows:
  • Material:
    • Black aluminum frame
    • Double pane glass
  • Window Sizes:
    • Medium Window: 28″ x 42″
    • Large Window: 28″ x 64″
  • Door Size:
    • Entry Door: 36″ x 80″
    • Door & window locations are customizable based on client’s preferences.

INTERIOR

Cieling Height
  • 8′- 0″ – 10′- 6″
  • All interior specs included in BOSS Homes standard package.
  • Boss’ standard interior package includes but is not limited to:
      • Interior doors & hardware
      • Cabinetry
      • A/C system (minisplit)
      • Electrical & plumbing fixtures
      • Finish flooring
      • Paint
      • Kitchen appliances excluded.

Standout Features

Roof Assembly
  • 4″ of PIR insulation for a total R-Value of 28
  • Painted Galvanized Steel Roof
  • Weatherproof interlocking panels
Wall Construction
  • 4″ of PIR insulation for a total R-Value of 42
  • Weatherproof interlocking panels w/ steel studs
  • Drywall interior, cement board exterior
Fire Safety
  • FM Approved Class 1: Highest fire rating for building materials.
  • Self extinguishing PIR insulation
Doors
  • Aluminum doors solid and glass options
Windows
  • Aluminum windows small, medium and large options.
Codes
  • Meets all International Building Codes
  • Meets California Building Codes
Sustainability
  • Eco Friendly construction with 35% recycled content (post-consumer bottles).
Warranty
  • 10 Year Structural Warranty

Design Your Own

Customize

Move windows, swap doors, and test colors to bring your Tiny House to life on our configurator

Design Your Own

Contact Us To Start Your Project